mh. 69 000,00 €
Yli hehtaarin tila missä oma syvä lampi, jossa voit uida ja nauttia veneilystäkin. 2004 on tilalle tehty pikkumökki, saunarakennus, varasto ja wc.
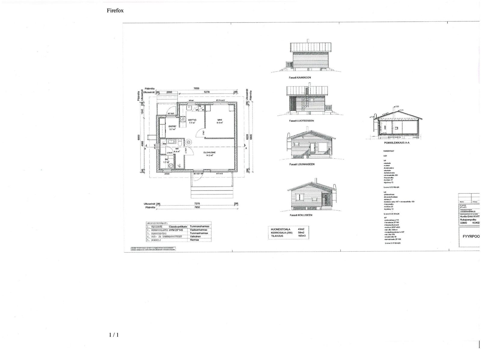
kauppaan kuuluu myös rakenteilla oleva mökki, oh+k+mh+s+ph+pkh+khh+wc, mihin on valmiina viemäröinti hulevesille ja umpisäiliö, voimavirta on kiinteistöllä.
Mikäli haluat, niin voit sopia myyjän kanssa mökin rakentamisesta loppuun.
Lähde tutustumaan ja kun pidät paikasta niin tarjousta kuunnellaan.
Kotikonsultit, mikäli haluat myydä asuntosi niin ota yhteyttä. p. 040 5965357
| Etuoven tunniste | 20699476 |
|---|---|
| Huoneiston kuvaus | mökissä 1 huone |
| Asuinpinta-ala | 7,0 m² |
| Kokonaispinta-ala | 7,0 m² |
| Sijainti | Kokemäki, PIILIJOENMAA |
| Hinta | 69 000,00 € |
Airi Leppänen
LKV, yrittäjä
040 596 5357
airi.leppanen@kotikonsultit.fi
Kohteen perustiedot
| Sijainti | Kokemäki, PIILIJOENMAA |
|---|---|
| Maa | Suomi |
| Tyyppi | Mökki tai huvila |
| Kiinteistö | mökki tai huvila |
| Kiinteistövero | 176,00 € / vuosi |
| Rakennusvuosi | 2004 |
| Huoneiston kuvaus | mökissä 1 huone |
| Huoneiden lukumäärä | ei luokiteltu |
| Asuinpinta-ala | 7,0 m² |
| Kokonaispinta-ala | 7,0 m² |
| Lisätietoja pinta-alasta | Mökki n. 7m2, sauna n.9,5m2 |
| Kerrossijainti | 1 / 1 |
| Muut maksut | Saunan eteisessä sähköpatteri, pikkumökissä ei patteria mutta tarvittaessa irtopatterilla lämmitetty. sähkö kulutuksen mukaan. |
Kohteen kuvaus
| Kiinteistötunnus | 271-471-4-71 |
|---|---|
| Energiatodistus | Ei lain edellyttämää energiatodistusta |
| Yleiskunto | tyydyttävä |
Tontti ja kaavoitus
| Tontin omistus | oma |
|---|---|
| Tontin pinta-ala | 1,24 ha |
| Kaavoitustilanne | Haja-asutusalue |
Materiaalit, varustelu ja lämmitys
| Kattotyyppi | Harjakatto |
|---|---|
| Kunnallistekniikka | Kiinteä jätekaivo, harmaat vedet 2 kaivoon. |
| Vesiliittymä | oma, kaivo |
| Viemäröinti | umpisäiliö |
WC- ja pesutilat
| Saunan kuvaus | Saunassa suihku, saunan eteisessä sähköpatteri. Kiukaassa vesisäiliö. |
|---|